+ Integral Refurbishment of a penthouse in calle Serrano, Madrid. Spain
Collaborator of Mariano Molina, Architect.
Location/Ubicación: Madrid
Project/Proyecto: 2015
Construction/Ejecución: 2015-2016
Architect/Arquitecto: Mariano Molina Iniesta
Collaborators/Colaboradores: Belén Collado González
Builder/Empresa constructora: Comercial Illescas
Built area/Superficie construida: 204,25 m2 (housing/vivienda) + 124,04 m2 (terrace/terraza)
Photography/Fotografía: Miguel de Guzmán + Rocío Romero (www.imagensubliminal.com)
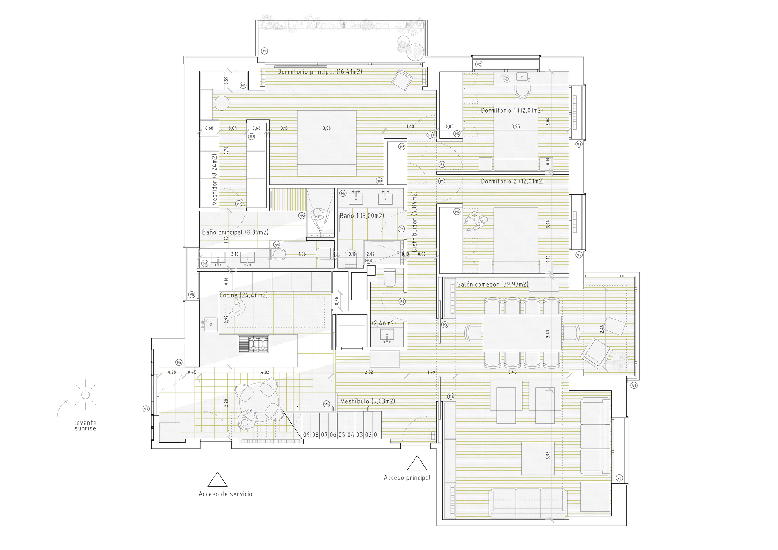
When faced sometimes with the question «what kind of architecture are we up to?», the most convincing answer is probably «the one that circumstances allow». This is particularly true in the case of a refurbishment, in which preexistences, coupled with the program and the wishes of the client, leave little room for a purely speculative proposal.
Fortunately, preexistences gave enough flexibility in this case: the entire vertical structure was located in the perimeter except for a central column to which a ventilation shaft was attached. This allowed to reorganize the house to the new program with some easiness and even to create unusual situations for a city center, such as the possibility to enjoy the landscape towards three cardinal points from the kitchen (sunrise), main bedroom (noon) and living room (sunset). These three large openings allow, especially in winter, natural light to flood the house at specific times of the day.
Beyond the advantages offered by the triple orientation of the house, elements such as the balcony of the living room or the staircase that leads to the upper level were seized to play with the subtlety of a glass corner or a hanging stringer, to become the elements that trap the viewer’s gaze.
The upper level is an absolutely exceptional situation to enjoy the skyline of the southern half of Madrid. It already had a room whose volume could not be modified, in which the triple orientation of the lower level was replicated. In addition, the presence of the ventilation shaft was used to create an alabaster lantern that floods the terrace with warm light during the night and shyly looks down Serrano street. It serves as a hinge giving unity to the different exterior areas, but in any case it does not intend, and probably it would not be able to, compete with the vision of the city skyline.
***
Enfrentados a veces a la pregunta “¿qué clase de arquitectura hacemos?”, la respuesta más convincente es probablemente “la que las circunstancias permiten”. Esto es particularmente cierto en el caso de una reforma, en la que las preexistencias, sumadas al programa y a los deseos del cliente, dejan poco margen para una propuesta puramente especulativa.
Afortunadamente, en este caso las preexistencias daban bastante flexibilidad: toda la estructura vertical era perimetral salvo un pilar central al que se adosaba un patinillo de ventilaciones. Esto permitió reorganizar la vivienda al nuevo programa con cierta facilidad e incluso crear situaciones poco habituales en el centro de la ciudad, como la posibilidad de dominar el paisaje hacia tres puntos cardinales desde la cocina (levante), dormitorio principal (mediodía) y sala de estar (poniente). Estos tres grandes miradores permiten, especialmente en invierno, que la luz natural inunde la casa en momentos concretos del día.
Más allá de las ventajas brindadas por la triple orientación de la vivienda, elementos como el mirador del salón-comedor o la escalera que conecta con el nivel superior se aprovecharon para jugar con la sutileza de una esquina de vidrio o una zanca colgada, que tratan de convertirse en los elementos que atrapen la visión del espectador.
El nivel superior es una situación absolutamente excepcional para disfrutar del perfil de toda la mitad sur de Madrid, que contaba con un espacio preexistente cuyo volumen no se podía modificar, en el que se replicó la triple orientación del nivel inferior. Se aprovechó además la presencia del patinillo de ventilación para crear una linterna de alabastro que inunda de luz cálida todo el espacio de la terraza durante la noche, y que se asoma tímidamente sobre la calle Serrano. Su posición de charnela da unidad a los diferentes ámbitos exteriores, pero en cualquier caso no pretende, y probablemente no puede, competir con la visión del perfil de la ciudad.

+ Guest House at University Campus de Unimak, Sierra Leona. (July 2013)
Collaborator of HD_Lab: https://hdlabceu.wordpress.com/
+ Design of Bamboo Vertical Garden, Makeni, Sierra Leona. (July 2013)
Collaborator of HD_Lab: Sofía Quiroga, Claudia Andino, Marta Leboreiro, María Álvarez.
https://hdlabceu.wordpress.com/